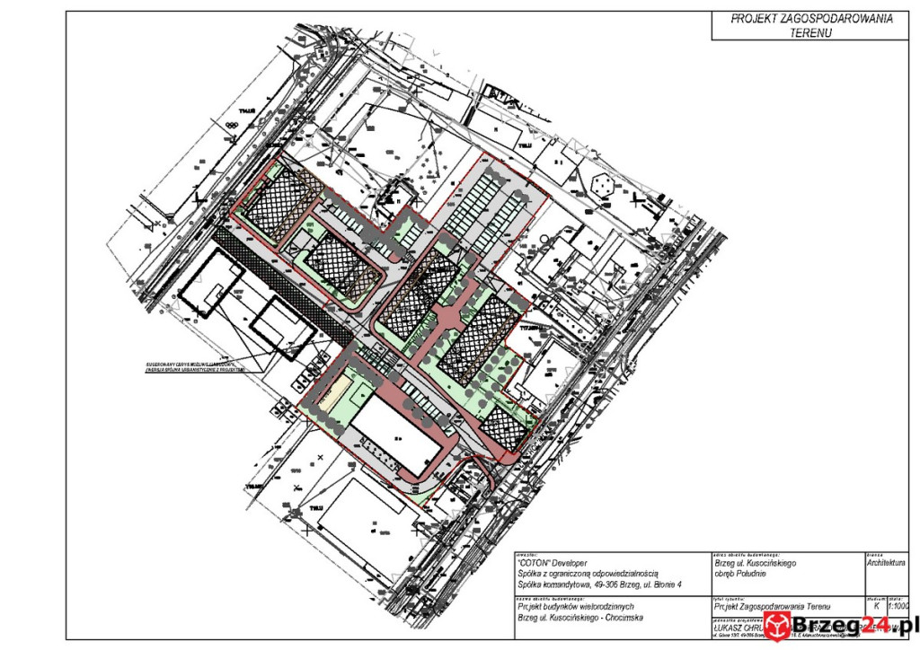
Deweloper z Brzegu, pan Zdzisław Kotowicz, buduje osiedle wielorodzinne, które będzie się składać aż z dwustu mieszkań. Docelowo swoje lokum znajdzie tam ponad 500 osób. Osiedle powstaje między ulicą Chocimską a Kusocińskiego. Deweloper chce także wybudować na swój koszt drogę dojazdową, która łączyłaby ulicę Chocimską i Kusocińskiego i byłaby oczywiście użytkowana nie tylko przez mieszkańców nowo powstałego osiedla. Korzystaliby z niej mieszkańcy całego miasta. Niestety, władze miasta, miejskie spółki i burmistrz Wrębiak zachowują się tak, jakby takiej drogi wcale nie chciały, a deweloper na każdym kroku odczuwa niechęć i brak dobrej woli z ich strony do jakiejkolwiek współpracy.
2020-08-10 21:10:50